-Za mehaničko aktiviranje WC-a sa MEPA ugradnim vodokotlićem. -Pokretanje sa prednje ili gornje strane, za površinsku ugradnju ili ugradnju u ravni sa pločicama.
-Za pričvršćivanje montažnih elemenata ispred punog zida. -Plastika, ojačana staklenim vlaknima, može se montirati bez alata, kompenzuje greške pri bušenju -Kontinuirano podesiva od 100 – 250 mm, može se skratiti.
-Zapremina vodokotlića: 9 litara -Mogućnost dvokoličinskog ispiranja -Velika količina vode: 6l / 9l -Mala količina vode: 3l / 4,5l -Priključivanje vode: gore sredina ili gore desno -Nosivi okvir izrađen od profila dimenzija 40 x 40 mm -Nosivi okvir površinski zaštićen praškastim lakiranjem u plavoj boji -Potporne noge – raspon od 0 do 20 cm -Raspon nosača za predzidnu montažu: od 15 do 20 cm -Prikladan za priključivanje WC šolje s udaljenošću osovine 18 ili 23 cm
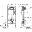
Šifra proizvoda: 458.103.00.2 Sanitarni element za WC šolju Ugradna visina 112 cm Delta vodokotlić debljine 12 cm Ispiranje 6/3 l (podesivo) Pritisak 0.1–10 bar Materijal: čelik Kompletan set za montažu
-Ram vodokotlića testiran je u skladu sa NF standardima pri opterećenju od 400 kg (XP D12-208), i metodama provere otpornosti na koroziju -Podesivo dvostruko ispiranje; Manja količina: 2,5 – 4 / Veća količina : 3 – 6 L -Izolacija od stiropora protiv kondenzacije -Tihi hidraulični ventil za punjenje – Klasa II, EN 14124 -Svaki uzorak je posebno ispitan u radu -Montirano odvodno koleno Ø 90 mm sa reducirom Ø 110 mm ili Ø 100 mm -Kopča za jednostavno pričvršćivanje cevi na ram vodokotlića -Set uključuje i sve potrebne elemente za montažu -5 godina garancije na sve delove osim gumenih -U okviru seta nije uključena aktivaciona tipka
-Za pričvršćivanje montažnih elemenata ispred punog zida. -Plastika, ojačana staklenim vlaknima, može se montirati bez alata, kompenzuje greške pri bušenju -Kontinuirano podesiva od 100 – 250 mm, može se skratiti.
-Za mehaničko aktiviranje WC-a sa MEPA ugradnim vodokotlićem. -Pokretanje sa prednje ili gornje strane, za površinsku ugradnju ili ugradnju u ravni sa pločicama.