🚿 Zidna baterija za mali bojler 🛠️ Otvorena veza bojler–baterija 💧 Protok 3–5 l/min ⚙️ Kompresioni gornji deo 3/8" 🔩 ABS trokraki rukohvat 📏 Pokretni izliv 200 mm ✨ Hromirana rozeta 🔊 Klasa bučnosti II
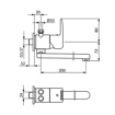
🚿 Zidna baterija za lavabo/sudoperu 🛠️ Dvoručna, kompresioni gornji deo 1/2" 💧 Klasa protoka Z – 7 l/min 💦 NEOPERL® PERLATOR® HONEYCOMB 🔩 Rukohvat dim boje 📏 Pokretni izliv 200 mm 🛡️ Heavy Duty ekscentar kolena ✨ Hromirane rozete 🔊 Klasa bučnosti I
🚿 Zidna baterija za lavabo/sudoperu 🛠️ Dvoručna, kompresioni gornji deo 1/2" 💧 Klasa protoka Z – 7 l/min 💦 NEOPERL® PERLATOR® HONEYCOMB 🔩 Rukohvat dim boje 📏 Pokretni izliv 200 mm 🛡️ Heavy Duty ekscentar kolena ✨ Hromirane rozete 🔊 Klasa bučnosti I